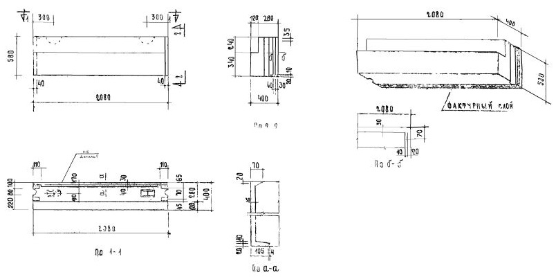
НБ-21.6.4

Чертеж изделия:
Чертеж НБ-21.6.4
Характеристики изделия:
ПараметрЗначение
Длина2080 мм
Ширина400 мм
Высота580 мм
Масса825 кг
Нормативный документСерия 1.133-1

Стеновые легкобетонные блоки толщиной 40 см по Серии 1.133-1.

НБ-21.6.4   Поясной блок.